10 программ для проектирования отопления


Рейтинг лучших программ для планирования отопления. Разбираем плюсы и минусы каждого продукта.

программа для проектирования отопления
Автор статьи

Рейтинг статьи:

5.0 Оценок: 2
Дата публикации: 4 февраля 2026
просмотров
10 мин

Отопление — сложная инженерная система, неправильный монтаж которой может привести к серьезной аварии. Чтобы такого не произошло, нужно уделить внимание планированию. В этом могут помочь специальные программы для проектирования отопления. Разберем 10 примеров таких продуктов для новичков и профессионалов.

В этой программе можно создать дом с нуля от фундамента до фасада, и сразу продумать систему отопления. Мой Дом 3D позволяет задать габариты здания, выбрать тип крыши, подобрать внешнюю отделку, продумать интерьер, а затем добавить радиаторы, трубы и котлы. Программа покажет, как оборудование будет выглядеть в 3D, и поможет избежать коллизий при проектировании инженерных систем.

После составления плана можно пройтись по виртуальному дому и проверить, не закрывают ли батареи окна, не мешает ли мебель конвекторам, удобно ли расположен котел. Вы не просто чертите схему, а моделируете реальное пространство, в котором система отопления станет частью проекта.

Особенности:

  • моделирование однотрубных, двухтрубных и лучевых схем отопления;
  • цветовая маркировка подающих и обратных магистралей;
  • автоматический расчет сметы;
  • редактирование размеров и внешнего вида отопительных приборов.
Плюсы:
  • полная визуализация интерьера, архитектуры и инженерии в одном пространстве;
  • интуитивный интерфейс, рассчитанный на людей без технического бэкграунда;
  • можно быстро добавлять подписи и комментарии на схемы;
  • свыше 750 размещаемых объектов для интерьера;
  • более 1250 материалов для кровли, наружной и внутренней отделки.
Минусы:
  • работает только на Windows.

интерфейс программы Мой Дом 3D
программа для проектирования систем отопления и водоснабжения
дизайн спальни в программе Мой Дом 3D
Скачать бесплатно Для Windows 11, 10, 8, 7

Используя этот продукт, можно протестировать всю систему без монтажа в реальности. Просто запустите симуляцию и программа сама просчитает, как теплоноситель движется по трубам: где давление падает, какие радиаторы получают недостаточно тепла, где возможны шумы. Если обнаружится проблема, вы получите сообщение об этом.

Тут можно добавить оборудование любого бренда, настроить его параметры и проверить, как оно поведет себя в вашем контуре. Программа подскажет, где возникнет кавитация, где потребуется насос, в каких моментах допущены ошибки.

Особенности:

  • автоподбор диаметров труб по скорости и потере давления;
  • есть инструмент для составления сметы по проекту;
  • позволяет смоделировать водяной теплый пол.
Плюсы:
  • нет привязки к конкретному производителю;
  • отечественная разработка с поддержкой на русском языке;
  • автоматически создает 3D-модели коммуникаций;
  • большое количество видеоуроков в открытом доступе.
Минусы:
  • для определения теплопотерь через стены и окна необходим дополнительный
    модуль за отдельную плату;
  • нет расчетов воздушных и других нестандартных систем отопления;
  • потери тепла по каждому прибору нужно указывать отдельно.

интерфейс программы Otoplenie3D
программа для проектирования систем отопления
расстановка отопительных приборов

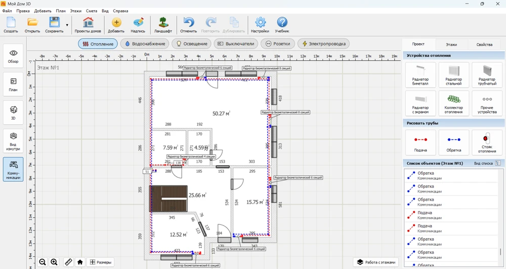
Домашний Инженер 3D — это софт для комплексного проектирования коммуникаций. Тут, помимо отопления, есть режимы работы с электрикой, водоснабжением, слаботочными системами и канализацией. Это помогает согласовать все инженерные системы, чтобы на этапе монтажа не возникло конфликтов.

Программа для проектирования систем отопления рассчитана прежде всего на новичков. Вначале вы строите здание по заранее начерченному плану, а потом наполняете помещения тепловым оборудованием. Здесь есть встроенный каталог 3D-моделей, в нем содержится несколько десятков приборов. Благодаря этому можно продумать планировку котельной и оценить, как радиаторы впишутся в интерьер. Фактически, это решение частично заменяет собой программы для расстановки мебели.

Особенности:

  • поддерживаются одно- и двухтрубные, коллекторные системы;
  • доступен экспорт схем в PDF;
  • можно менять высоту размещения радиаторов и других приборов;
  • любые предметы кастомизируются, меняется их размер и внешний вид.
Плюсы:
  • полностью отечественная разработка;
  • можно добавлять обмерные чертежи в качестве подложек для планов;
  • автоматический расчет сметы по ценам, заданным пользователем;
  • доступна 3D-визуализация системы;
  • подходит для многоквартирных и частных домов.
Минусы:
  • прокладка труб — только в 2D-режиме;
  • не учитываются теплотехнические характеристики материалов.

схема отопления в частном доме
устройства отопления в программе Домашний Инженер 3D
интерфейс программы Домашний Инженер 3D

В отличие от других программ для проектирования систем отопления и водоснабжения, Valtec.PRG не имеет какого-либо графического ядра. Все взаимодействие с софтом сводится к цифрам и таблицам. С одной стороны, это усложняет восприятие, но с другой позволяет не отвлекаться на несущественные нюансы.

С помощью этого продукта вы быстро рассчитаете теплопотери каждого помещения, подберете мощность котла и радиаторов, спроектируете теплый пол в полном соответствии со СНиП и СП. Для того чтобы подобрать оборудование, достаточно ввести основные параметры стен и окон.

Особенности:

  • точный расчет радиаторного, настенного и напольного отопления;
  • расчет пропускной способности труб;
  • определение потребности в горячей и холодной воде;
  • поддержка многоэтажных домов.
Плюсы:
  • есть сертификат о соответствии стандартам РФ;
  • лаконичный интерфейс;
  • полностью бесплатный доступ;
  • множество справочников по климатологии, материаловедению, теплотехнике.
Минусы:
  • ориентирован только на продукцию Valtec;
  • не поддерживает пользовательские базы оборудования;
  • ручной ввод данных, нельзя загрузить таблицу из файла.

рассчет теплопотери дома
подбор отопительных приборов
аэродинамический расчет дымовой трубы

Стандартные версии AutoCAD и nanoCAD плохо подходят для планирования теплоснабжения. Но эту проблему можно решить, установив бесплатный плагин DCAD. Он автоматически оформляет чертежи по ГОСТ, генерирует спецификации и выполняет тепловые расчеты. Работает с базами RIDAN, HENCO, ISOTERM.

Особенности:

  • базы оборудования постоянно обновляются;
  • чертежи и вычисления соответствуют СП 60.13330.2020, есть сертификат;
  • автоматический расчет отопительного оборудования с учетом схемы.
Плюсы:
  • интерфейс понятен любому пользователю AutoCAD или nanoCAD;
  • есть импорт файлов в расширении DWG;
  • на официальном сайте есть бесплатные видеоуроки, вебинары и разборы ошибок.
Минусы:
  • не работает без установленной САПР;
  • нет 3D-визуализации труб и радиаторов;
  • поддерживается не всеми версиями базовых платформ.

расчет отопительного оборудования
схема прокладки труб
сптсок оборудования

Эта программа для расчета системы отопления позволяет моделировать лучевые и периметральные схемы разводки. Чтобы получить точные характеристики приборов, нужно начертить план и задать входные параметры.

Софт включает в себя обширную базу компонентов Oventrop и поддерживает расчет теплых полов. Хотя обновления прекращены с 2019 года, текущая версия стабильно работает и остается востребованной.

Особенности:

  • в качестве источника данных используется чертеж, созданный пользователем;
  • интуитивно понятная визуализация результатов;
  • автоматическая диагностика ошибок в схеме;
  • подбор настроек арматуры;
  • формирование спецификаций с фитингами и крепежом.
Плюсы:
  • бесплатная лицензия;
  • ошибки помечаются на схеме цветами;
  • есть инструменты для постройки сложных контуров.
Минусы:
  • не работает с оборудованием других брендов;
  • не рассчитывает теплопотери помещений;
  • поддержка продукта прекращена.

интерфейс Oventrop
отчетная документация
проектирование системы отопления

Еще одна платформа, предназначенная для работы с оборудованием компании Valtec. Вычисления и схемы, сделанные здесь, соответствуют всем требованиям СП 60.13330.2020. Благодаря этому программное обеспечение можно рекомендовать профессиональным проектировщикам и застройщикам.

Особенности:

  • гидравлический расчет с учетом местных сопротивлений;
  • экспорт чертежей в DWG и PDF;
  • поддержка антифризных систем.
Плюсы:
  • подходит для разработки крупных объектов;
  • каталоги постоянно пополняются, а проект развивается;
  • понятные этапы работы позволяют разобраться даже новичку;
  • программа дает подсказки к каждой кнопке меню.
Минусы:
  • нет графического отображения разводки;
  • нельзя добавить свое оборудование;
  • в новых модулях могут наблюдаться ошибки.

интерфейс программы VT.Engineer
 гидравлический расчет системы отопления
данные о трубопроводах

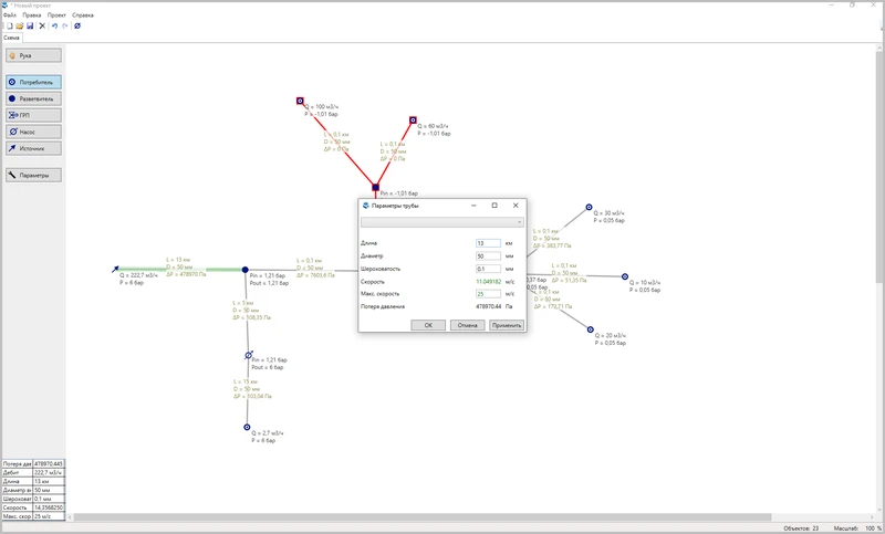
Данная программа тоже не может похвастаться красивыми визуализациями. Но здесь легко просчитать гидравлику любой сложности — от дачного домика до промышленного объекта. ПО подбирает диаметры труб, определяет потери давления, параметры насосов.

Строго говоря, этот продукт не является полноценной программой для проектирования сантехники и отопления. Он отвечает лишь за насосы и трубы. Теплопотери, мощность котла и другие параметры, не связанные с гидравликой, придется определять через стороннее программное обеспечение.

Особенности:

  • точный расчет тупиковых и кольцевых схем водяного отопления;
  • подбор насосов по заданным параметрам;
  • учет коэффициентов местных сопротивлений.
Плюсы:
  • поддерживает пользовательские типоразмеры труб;
  • интерфейс не перегружен ненужными функциями;
  • удобный экспорт данных в Excel.
Минусы:
  • не формирует смету;
  • в разводках с насосами допускает незначительные ошибки;
  • нельзя менять нумерацию объектов на плане.

интерфейс программы Стокс
расчет тупиковых схем
расположение труб на схеме

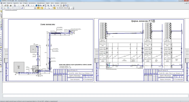
Одна из самых популярных отечественных САПР в своем исходном виде плохо подходит для того чтобы планировать теплоснабжение. Но установив модуль с трубопроводами, можно расширить функционал. Он позволяет моделировать сети отопления из фитингов, кранов, котлов и радиаторов. Все чертежи оформляются в соответствии с ЕСКД.

Особенности:

  • параметрическое 3D-моделирование;
  • формирование аксонометрических схем и разрезов;
  • создание собственных библиотек оборудования;
  • интеграция с архитектурной моделью здания.
Плюсы:
  • независимость от западных платформ;
  • проработка всех разделов проектирования;
  • полная свобода моделирования.
Минусы:
  • высокий порог входа;
  • необходимый модуль приобретается отдельно;
  • интерфейс программного обеспечения построен на логике, непохожей на AutoCAD и другие зарубежные инструменты.

интерфейс Компас-3D
проектирование трубопроводной системы в программе Компас-3D
схема теплосетей

ИНЖКАД — это плагин, который превращает САПР в софт для построения наружных инженерных сетей. Он позволяет прокладывать трубы теплоснабжения с привязкой к топографическому плану местности. Плагин автоматически оформляет чертежи по ГОСТ и генерирует профили трасс.

Особенности:

  • поддерживает генерацию экспликаций и ведомостей материалов;
  • можно использовать координационные оси и умные привязки;
  • есть дополнительные модули для аксонометрии.
Плюсы:
  • официально поддерживается в РФ;
  • полностью совместим с DWG-форматом;
  • программа автоматически отслеживает пересечения системы отопления частного дома с другими коммуникациями.
Минусы:
  • нужен ZWCAD или AutoCAD;
  • ориентирован в первую очередь на наружные сети;
  • нет встроенных теплотехнических расчетов.

интерфейс программы ИНЖКАД
проектирование наружных инженерных систем
прокладывание теплоснабжения

Заключение

Если вам нужна простая программа для проектирования отопления для частного дома, выбирайте Мой Дом 3D или Домашний Инженер 3D. Они покажут, как система впишется в архитектуру и интерьер, а также помогут избежать ошибок на этапе монтажа.

Если нужны точные и сложные расчеты — скачайте бесплатную Valtec.PRG.

ИНЖКАД, Компас-3D и Стокс тоже можно задействовать. Но эти продукты предназначены больше для профессионалов, чем для людей, которые хотят сами обустроить свой дом.


Комментарии (0)
Оставить комментарий:
Введено символов: 0 из 1000
Антиспам:
=
Прокомментируйте первым!
Создавайте уютный интерьер
в программе Дизайн Интерьера 3D
Скачать бесплатно Для Windows 11, 10, 8, 7