10 удобных программ
для проектирования
электрики в доме


Тестируем десять сервисов для самостоятельного проектирования электрики. Говорим о преимуществах, оцениваем функционал и особенности.

программы для проектирования электрики
Автор статьи

Рейтинг статьи:

5.0 Оценок: 2
Дата публикации: 3 декабря 2025
просмотров
10 мин

Спроектировать электропроводку в доме «на глаз» — значит рисковать комфортом, безопасностью и финансами. Без проекта даже профессионал не сможет рассчитать нагрузку, правильно расположить розетки, и смонтировать оборудование в нужной последовательности. Поэтому обязательно нужно составлять схему.

На помощь в этом приходят специализированные программы для проектирования электрики. В статье разберем 10 таких сервисов.

Это удобный инструмент для проектирования частного дома, который позволяет создать детальную 3D-модель здания с привязкой всех инженерных систем, включая электрику, отопление, водоснабжение и канализацию.

Электроснабжению здесь уделено повышенное внимание. Сервис позволяет расставить розетки и выключатели, спланировать слаботочные системы, продумать местоположение щита и распределительных коробок.

Особенности:

  • полноценное 3D-моделирование всего дома, включая архитектуру, дизайн интерьера, а также инженерные системы;
  • можно выбрать тип фасада, форму крыши, материалы стен и кровли;
  • софт позволяет создать смету на основе проекта;
  • доступна работа с несколькими этажами, в том числе и подвальным.
Плюсы:
  • доступен готовый каталог оборудования для проектирования освещения, электро-, водо- и теплоснабжения в доме;
  • есть конструктор розеток и выключателей;
  • наглядная цветовая маркировка проводов по сечениям и типам;
  • удобный интерфейс.
Минусы:
  • отсутствует возможность просматривать трассы в 3D.

интерфейс программы Мой Дом 3D
планировка дома
дизайн спальни
Скачать бесплатно Для Windows 11, 10, 8, 7

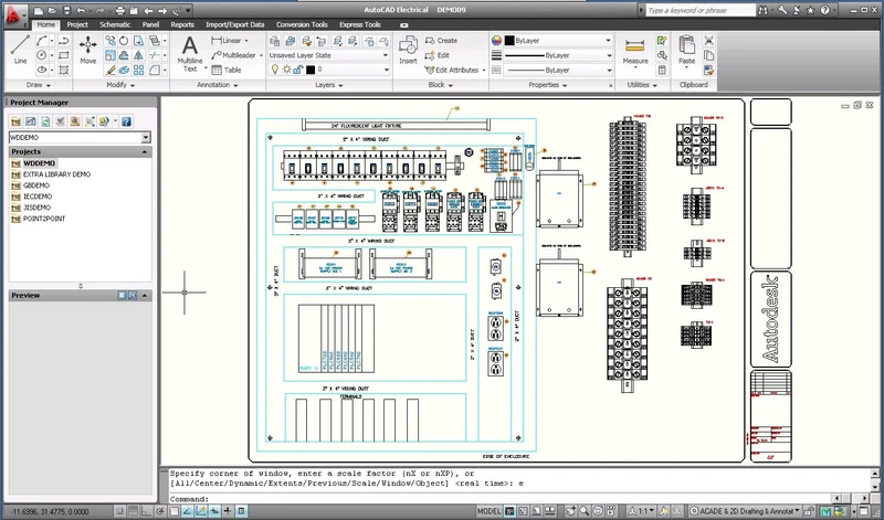
Профессиональное программное обеспечение из пакета Autodesk, стандарт в промышленном и гражданском проектировании. AutoCAD Electrical предназначен для создания принципиальных и однолинейных схем, точных чертежей и спецификаций. Во многом его функционал избыточен для частного домостроения, но если у вас большой коттедж, то имеет смысл рассмотреть и эту программу для проектирования дома.

Особенности:

  • может самостоятельно создавать схемы на основе правил, заданных пользователем;
  • поддерживается загрузка сторонних библиотек электрических компонентов, есть встроенная коллекция знаков по ГОСТ и IEC;
  • автоматическая нумерация проводов, генерация списков материалов и отчетов.
Плюсы:
  • софт популярен среди проектировщиков — чертежи легче передавать специалистам;
  • программное обеспечение отслеживает ошибки на электрических схемах, такие как обрывы проводов, и сообщает о них;
  • поддерживается интеграция с другими продуктами компании Autodesk.
Минусы:
  • продукт перестал поддерживаться и продаваться в России;
  • сложный и перегруженный интерфейс, не предназначенный для новичков.
  • в бесплатной версии нет многих функций, включая прокладку проводов.

интерфейс AutoCAD Electrical
проектирование схемы в AutoCAD Electrical
создание чертежа в AutoCAD Electrical

Это несложная программа для проектирования электропроводки для дома, которая рассчитана на новичков и пользователей с опытом. Здесь можно спланировать освещение, проложить линии питания, смоделировать расположение щита, розеток и другого оборудования. Предусмотрена цветовая маркировка проводки: есть двух-, трех- и пятижильные провода, у каждого сечения свой оттенок. Это помогает не запутаться, проектируя сложную систему.

Фокус сделан именно на проектирования электропроводок для дома. В каталоге вы не найдете асинхронных двигателей или промышленных генераторов, зато встретите множество розеток, выключателей, светильников и другое бытовое оборудование. Программа подойдет, если планируется сложный дизайн кухни в частном доме с островом, встроенной техникой и многоуровневым освещением.

Особенности:

  • можно сделать схему для дома практически любых размеров;
  • розетки и выключатели автоматически привязываются к стенам;
  • чертежи и сметы импортируется в PDF-файл, адаптированный для печати.
Плюсы:
  • на сайте сервиса можно воспользоваться бесплатными программами-калькуляторами, которые облегчают расчеты электропроводки;
  • можно посмотреть в 3D, как располагаются розетки, выключатели, щиты, светильники;
  • есть готовые модели оборудования.
Минусы:
  • в самом софте нет возможности делать вычисления;
  • часть данных в смету вписывается вручную.

интерфейс программы Домашний Инженер 3D
программа для проектирования электропроводки для дома
электропроводка в программе Домашний Инженер 3D

Профессиональное решение, которое подходит для проектирования даже сложных многоэтажных зданий. Чтобы получить максимум функций, нужно установить плагин BIM Electrical Design от Schneider Electric. Это расширение превращает универсальный инструмент в программу для проектирования электропроводки в доме.

В результате работы с сервисом вы получаете готовую цифровую модель здания. Изменения в одной точке влияют на всю систему. Например, если вы меняете контур здания, Revit автоматически перестраивает помещения с учетом привязок, а также переносит коммуникации и окна.

Особенности:

  • создание 3D-модели электропроводки внутри архитектурной модели здания;
  • доступна автоматизация проектирования — пользователю не нужно считать нагрузки, токи короткого замыкания и потери напряжения;
  • есть библиотека объектов, в которую входят кабельные лотки, панели управления, розетки и другое оборудование.
Плюсы:
  • софт позволяет минимизировать ошибки на стадии планирования благодаря отслеживанию пересечений и несостыковок;
  • расчеты многих параметров, таких как энергоэффективность или расход воздуха, выполняются в автоматическом режиме;
  • подходит для командной работы архитектора, инженера и других специалистов.
Минусы:
  • высокая сложность — нужно освоить не только сам Revit, но и разобраться в плагине;
  • официально не поддерживается в РФ;
  • цена более 1000$.

интерфейс Revit
создание 3D-модели электропроводки
проектирование электропроводки в Revit

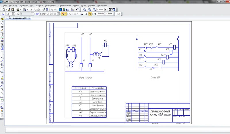
Ведущее отечественное решение для проектирования электрических схем, активно используемое в России благодаря поддержке ГОСТ и локализации. В каталоге есть электрические компоненты, доступные на местном рынке.

Особенности:

  • подходит для проектирования однолинейных и принципиальных схем;
  • можно создавать чертежи по ГОСТ;
  • автоматическая генерация спецификаций.
Плюсы:
  • можно рассчитывать нагрузку на цепь, силу тока и другие параметры;
  • автоматическая проверка проектов на наличие пересечений и наложений элементов;
  • интеграция с продуктами АСКОН, такими как Компас: Строительная конфигурация.
Минусы:
  • морально устаревший интерфейс;
  • слабая 3D-визуализация, инструмент больше ориентирован на документацию;
  • запутанная система меню, усложняющая выполнение простых операций.

интерфейс Компас-Электрик
проектирование однолинейной схемы
проектирование принципиальной схемы

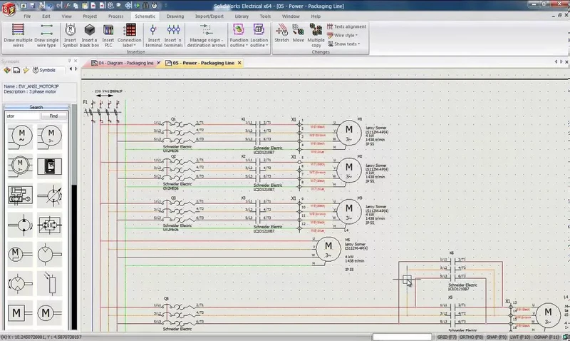
Еще один профессиональный инструмент, популярный среди инженеров, занимающихся проектированием сложных электрощитов и систем автоматики. Эта САПР подходит для трехмерного моделирования, поэтому теоретически есть возможность сделать несложную визуализацию квартиры.

Особенности:

  • можно проецировать трехмерные модели на чертежи;
  • удобное управление базами компонентов, есть возможность отключать ненужные библиотеки и подгружать недостающие;
  • интеграция с Autodesk Inventor и другими продуктами.
Плюсы:
  • экспорт файлов в форматах STEP и IGES, которые читаются большинством САПР;
  • длина кабелей, использованных для решения задачи, считается автоматически;
  • в софте доступно сохранение часто используемых фрагментов сборок и использование их на новых чертежах.
Минусы:
  • высокие системные требования при посредственной оптимизации — нужны минимум 16 ГБ ОЗУ и процессор с тактовой частотой от 3,3 ГГц;
  • изучение базового функционала занимает не один день;
  • для покупки понадобится зарубежная карта.

интерфейс SolidWorks Electrical
проектирование электрощита
проектирование систем автоматизации

Облачный сервис, специализирующийся исключительно на разработке и визуализации щитов. Можно использовать в качестве дополнения к простой программе для проектирования электрики в доме, не имеющей подобного функционала.

Особенности:

  • автоматический расчет номиналов автоматов и УЗО на основе нагрузки;
  • оптимизация распределения нагрузки по фазам;
  • есть готовый перечень потребителей, из которого можно выбрать нужные объекты, такие как стиральные машины, плиты, посудомойки и т. д.
Плюсы:
  • работает в любом браузере;
  • прост и удобен для своей узкой задачи;
  • способен быстро пересчитывать проект при внесении изменений.
Минусы:
  • нельзя спроектировать систему целиком, нуждается в дополнительных инструментах;
  • спецификация содержит примерные цены без привязки к конкретным производителям;
  • смета доступна только в платных версиях.

интерфейс MyFuseBox
разработка электрощита
визуализация щита

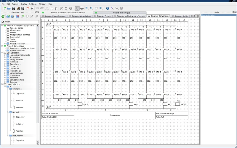
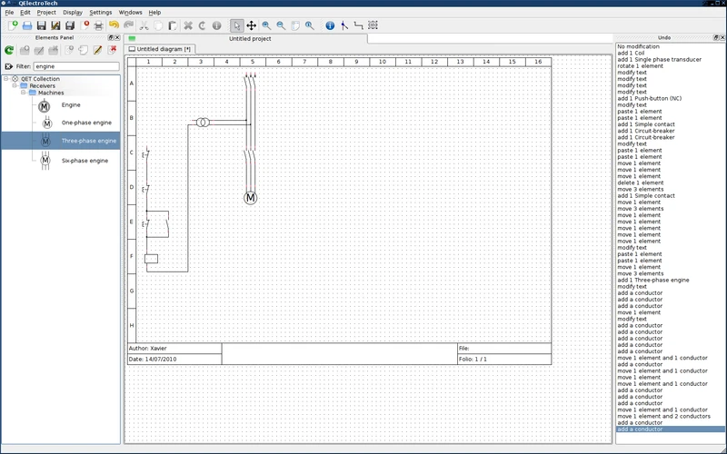
Софт начального уровня для рисования электрических схем, популярный среди студентов и любителей. Поддерживает работу с несколькими языками даже внутри одного документа. Чертежи, созданные в программе, экспортируются в файлы форматов DXF, PDF, JPG, PNG, BMP, SVG.

Особенности:

  • работа с однолинейными, принципиальными и монтажными схемами;
  • есть возможность создавать собственные элементы библиотеки;
  • поддерживается экспорт в различные форматы, включая PDF и DWF.
Плюсы:
  • полностью бесплатное приложение;
  • работает на Windows, Linux, macOS;
  • списки материалов создаются в несколько кликов.
Минусы:
  • отсутствуют автоматические расчеты проводки;
  • нет интеграции с планами помещений;
  • запутанный интерфейс.

интерфейс QElectroTech
отрисовка электрических схем
работа с монтажными схемами

Еще одна несложная чертежная программа, часто используемая для небольших проектов. В отличие от QElectroTech, является платным приложением.

Особенности:

  • поддерживает параметризацию;
  • можно скачивать бесплатные библиотеки из интернета;
  • объекты добавляются на лист простым перетаскиванием.
Плюсы:
  • минималистичный и быстрый интерфейс;
  • автоматически собирает списки и нумерует компоненты;
  • можно создавать и сохранять свои элементы.
Минусы:
  • в бесплатной версии отсутствуют функции печати и сохранения;
  • нет поддержки русского языка;
  • нельзя автоматизировать расчеты.

интерфейс sPlan
создание щитка в sPlan
разработка электрощита в sPlan

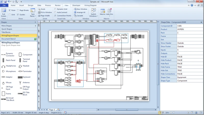
Универсальный графический редактор от Microsoft, который можно использовать в качестве бесплатной программы для проектирования электрики для дома.

Особенности:

  • поддерживает совместное редактирование;
  • доступны обозначения, соответствующие ГОСТ;
  • можно создавать шаблоны документов.
Плюсы:
  • знакомый интерфейс для пользователей Office;
  • хорошо интегрируется с другими продуктами Microsoft 365;
  • богатая библиотека обозначений электрических компонентов, таких как лампы, звонки, выключатели, тумблеры.
Минусы:
  • не является специализированным ПО для проектирования проводки;
  • нет расчетов и проверок схем;
  • без знания требований к оформлению не получится сделать документ, соответствующий стандартам отрасли.

интерфейс Microsoft Visio
проектирование электрики в Microsoft Visio
приложение для проектирования Microsoft Visio

Подводим итоги

Для профессиональных пользователей, работающих над крупными проектами, незаменимы такие решения, как AutoCAD Electrical, Revit или SolidWorks.

Однако для большинства владельцев частных домов и квартир лучшими вариантами станут Мой Дом 3D и Домашний Инженер 3D. Эти программы позволяют составить схему электрики для всех помещений. А чтобы дополнить их функционал, можно использовать MyFuseBox и бесплатное программное обеспечение QElectroTech. Эти продукты помогут спланировать щит и начертить принципиальные схемы электроснабжения.


Комментарии (0)
Оставить комментарий:
Введено символов: 0 из 1000
Антиспам:
=
Прокомментируйте первым!
Оцените возможности многофункциональной программы для дизайна интерьера
Скачать бесплатно Для Windows 11, 10, 8, 7 и XP