Мой Дом 3D: скачать программу для планировки дома

Нейросети для дизайна интерьера создают яркие идеи за секунды, но для строительства или ремонта дома нужен точный проект. Его можно сделать в программе Мой Дом 3D: нарисуйте планировку, расставьте мебель, проведите коммуникации и посмотрите на результат в 3D. Займитесь проектированием частного дома уже сейчас!

Онлайн-планировщик гостиной

Возможности программы Мой Дом 3Д

Разработайте план помещения
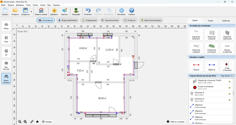
и систему коммуникаций

Софт позволяет пользователям моделировать многоэтажные дома с крышей и подвалом. При создании проекта инженерных систем удобно работать на отдельных холстах. На листе отопления отображаются трубы, радиаторы и стояки. Вкладка водоснабжения нужна для разметки выводов ХВС и ГВС, а также канализации. Еще вы сможете проложить электропроводку, разместить розетки и выключатели.

Сделайте внешнюю и внутреннюю отделку здания

В каталоге ПО 1150+ материалов для облицовки фасадов и внутренней отделки дома. Здесь вы найдете тренды дизайна интерьера 2025 года: оливковую и терракотовую обивку для дивана, натуральный камень для столешницы и многое другое. Кроме того, можно загрузить изображение со своим рисунком и использовать в проектах. Скачайте бесплатно полную версию Мой Дом 3Д, и экспериментируйте с отделкой коттеджа.

Меблируйте комнаты

Встроенная библиотека насчитывает 600+ моделей мебели и техники. Все элементы можно настроить по своему желанию: уменьшить или увеличить длину, ширину и высоту, выбрать цвет из палитры или материал из каталога. Перемещайте предметы с помощью стрелок на плане или задайте необходимую позицию объекта во вкладке «Свойства».

Посмотрите результат

Бесплатная версия программы предлагает четыре формата просмотра. 2D-план — это вид сверху, здесь отображаются размеры стен, площадь, подписи, схема расстановки мебели. В 3D-режиме показаны цвета, текстуры, внешний вид дома. Одновременный просмотр 2D и 3D пригодится, чтобы мгновенно увидеть изменения. Прогулка от первого лица помогает проверить удобство планировки.

Скачать бесплатно Для Windows 11, 10, 8, 7 и XP

Как работать в программе Мой Дом 3D

Следуйте инструкции по созданию планировки своего дома. Начните с простого: скачайте Мой Дом 3D бесплатно на русском языке, а дальше выполняйте шаги.

Создание дома
Шаг 1

Постройте план дома

Откройте ПО и выберите режим строительства из двух вариантов. Нажмите «Нарисовать план с нуля», если хотите отрисовать стены по сетке, или кликните «Загрузить план дома», чтобы добавить стены поверх чертежа. Создайте необходимое количество этажей, крышу, дополните макет окнами, дверьми, лестницами.

Шаг 2

Проведите коммуникации

Откройте раздел «Коммуникации» и перейдите на холст «Отопление». Конструктор позволяет нарисовать трубы подачи и обратки, разместить на схеме стояки и радиаторы. Повторите действия на всех остальных этажах, а также сделайте схемы водоснабжения и канализации, нанесите на план светильники, розетки и выключатели.

Коммуникации
Отделка и расставление мебели
Шаг 3

Сделайте дизайн-проект

Дважды нажмите на комнату в окне «Список объектов», измените покрытие пола и стен. Щелкните на значок «Мебель и освещение» → «Добавить мебель и технику». Каталог разделен на категории, например, прихожая, ванная, кухня, гостиная и т. д. Перейдите в раздел «Спальня», перенесите кровать на план, добавьте тумбочки и комод. Затем переключитесь на вкладку «Декор», чтобы украсить интерьер шторами, комнатными растениями и картинами.

Шаг 4

Экспортируйте результат

Каждый пользователь сможет экспортировать проект в трех вариантах. Сохраните проект дома в формате JPG, PNG или BMP для демонстрации другу или заказчику. Чтобы прикрепить проект к строительной документации, используйте PDF. MH3D подойдет для просмотра модели или дальнейшей доработки в ПО.

Сохранение проекта

Мой Дом 3D — удобная программа для создания проекта дома

Мой Дом 3D — программа для проектирования домов, отлично функционирует даже на слабых ПК. Благодаря простому интерфейсу и подробной системе подсказок, пользователи могут легко создавать коттеджи различной сложности.

Преимущества программы Мой Дом 3D:

  • нет ограничений на количество этажей;
  • конструктор кирпичной кладки;
  • «Линейка» для измерения расстояний между объектами;
  • можно добавлять свои текстуры для отделки;
  • пять готовых сценариев освещения и ручная настройка.

Скачать бесплатно Для Windows 11, 10, 8, 7 и XP
Спроектируйте свой дом мечты в простой программе
Скачать программу