Домашний Инженер 3D: скачать программу для проектирования инженерных систем

Домашний Инженер 3D — это новый продукт российского разработчика, созданный с учетом реальных задач проектировщиков, монтажников и других специалистов в области ремонтных работ. Он подходит для проектирования инженерных систем в частных домах и квартирах. Дополнительно есть инструменты для проработки интерьера.

программа Домашний Инженер 3D

Преимущества Домашнего Инженера 3D

7 планировочных листов

Работайте с чертежами в семи режимах. Заносите в программу планировку комнат, размечайте отопление и водоснабжение, электропроводку, розетки и выключатели, приборы освещения. В программе используются наглядные пометы и простые инструменты для их нанесения.

Проектирование
многоэтажных зданий

Разрабатывайте полноценную систему инженерных коммуникаций для частного дома. В программе Домашний Инженер 3D для каждого этажа предусмотрен отдельный чертеж с разметкой. Помимо обычных этажей, можно проектировать цоколь и мансарду.

Работа со светом

Продумайте сценарии освещения для каждой комнаты. В каталоге Домашнего Инженера 3D есть модели потолочных, настенных, напольных ламп. Их можно добавлять на макет и включать, чтобы увидеть, как они работают в интерьере.

Режим 3D-визуализации

Разработайте дизайн, подходящий плану коммуникаций. В 3D-режиме можно расставить мебель и добавить текстуру отделки. Это дает полное представление о том, как будет выглядеть помещение после завершения строительства.

Скачать бесплатно Для Windows 11, 10, 8, 7

Как работать в программе Домашний Инженер 3D

Читайте, как создать рабочий проект инженерных сетей еще до начала строительства.
Так вы избежите переделок, снизите затраты и ускорите монтаж.

Создание планировки
Шаг 1

Создайте общий чертеж

Начните с планировки: начертите стены, укажите их длину и высоту, добавьте дверные и оконные проемы. Домашний Инженер 3D работает в масштабе, поэтому на макете точно будут соблюдены пропорции. Готовый план станет основой для размещения инженерных систем и мебели. А если нужна, например, перепланировка однокомнатной квартиры, просто занесите новые данные в проект и подберите наиболее удобный и технически грамотный вариант.

Шаг 2

Спроектируйте систему отопления

Проложите трубы подачи и обратки, а затем добавьте радиаторы. В программе предусмотрен отдельный каталог для нагревательных устройств. Устанавливайте котлы, насосы, бойлеры и другие модели на план.

система отопления
водоснабжение и канализация
Шаг 3

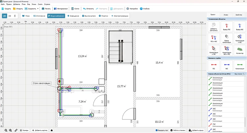
Проложите водоснабжение и канализацию

С чего начать ремонт на кухне или в ванной? Разместите на плане условные обозначения ХВС, ГВС и канализации. Добавьте сантехнику — ванны, раковины, стиральные и посудомоечные машины. Проложите трубы от сантехники к стоякам и к коллекторам в котельной. Канализационный стояк соедините со всеми сливными точками.

Шаг 4

Разработайте электрическую схему

Сначала расставьте светильники и люстры, затем — выключатели и розетки. Разместите щиток у входа и проложите кабели с цветовой кодировкой. Добавьте освещение, розетки и выключатели.

электрическая схема

Домашний Инженер 3D — удобная программа
для проектирования коммуникаций

Все, что требуется — это желание и пара часов времени. В Домашнем Инженере 3D собраны все необходимые функции для комфортного проектирования. Начните прямо сейчас — скачайте бесплатную версию и создайте свой первый проект за один вечер!

Плюсы программы Домашний Инженер 3D:

  • Подходит для новичков и профессионалов — не требует длительного изучения.
  • Все системы в одном проекте.
  • Есть встроенные онлайн-калькуляторы.
  • Готовые каталоги — 1150+ материалов отделки и 700+ моделей мебели.
  • Режим виртуальной прогулки для предварительной оценки интерьера.

Скачать бесплатно Для Windows 11, 10, 8, 7