Дизайн маленькой спальни:
5 идей эргономики пространства и трендовые стили интерьера


Подготовили практичные советы для дизайна маленькой спальни, которые помогут оформить и обустроить небольшую комнату стильно и с пользой.

Дизайн маленькой спальни
Автор статьи

Рейтинг статьи:

5.0 Оценок: 2
Дата публикации: 25 ноября 2025
просмотров
11 мин

В нашем обзоре вы найдете приемы для организации стильных интерьеров, правила зонирования и выбора мебели, которые помогут сделать вашу маленькую спальню уютной, функциональной и визуально просторной.

Содержание
  1. Как организовать пространство в маленькой спальне
  2. Создаем 3D план маленькой спальни в простой программе
  3. Выбираем стиль дизайна маленькой спальни
  4. Цветовая гамма
  5. Мебель
  6. Освещение и декор
  7. Итоги

Как организовать пространство
в маленькой спальне

Спальный уголок небольшого размера — это не ограничение, а возможность проявить фантазию и создать любимое место для комфортного отдыха. Следующие советы помогут превратить ограниченную квадратуру в полноценное спальное место.

  1. Используйте многофункциональную мебель. Вместо громоздких шкафов выберите кровать с ящиками для хранения постельного белья или сезонных вещей. Рассмотрите модели, у которых в изголовье встроены полки или ниши, конструкцию по типу подиума с откидным спальным местом.
  2. Задействуйте вертикальное пространство и легкие материалы. В дизайне интерьера небольшой спальни в современном стиле откажитесь от прикроватных тумб, храните книги и декоративные мелочи на настенных полках, включая пространство над дверным проемом. Мебель на высоких тонких ножках визуально создает ощущение «воздуха» и легкости, так как открывает больше площади пола.
  3. Продумайте многоуровневое освещение. Комбинируйте точечные потолочные светильники, бра у изголовья кровати, декоративные ночники. Такой подход позволит менять атмосферу в комнате и зрительно увеличит ее за счет игры света и теней.
  4. Не бойтесь цветовых акцентов для создания характера. Стандартно для видимого увеличения пространства выбирают светлые оттенки. Чтобы добавить интерьеру глубины и уюта, можно оформить в ярком цвете акцентную стену у изголовья. Также интересный эффект дает цветной потолок в пастельных оттенках (например, нюдово-розовый или небесно-голубой), который визуально приподнимает высоту комнаты.
  5. Расширяйте границы с помощью зеркал и глянца. Разместите большое зеркало напротив окна — это усилит поток естественного света и создаст эффект дополнительного пространства. Зеркальные фасады шкафа-купе или декоративное зеркало в изголовье также отлично справятся с этой задачей.

Создаем 3D план маленькой спальни
в простой программе

Правильный дизайн интерьера начинается с детального планирования. В программе Дизайн Интерьера 3D можно составить предварительную схему спальни, заранее оценить и сравнить между собой разные варианты оформления, их функциональность. С помощью плана можно избежать серьезных ошибок в выборе предметов и с расстановкой мебели. Кроме того, наглядный чертеж экономит время, силы и бюджет.

Скачать бесплатно Для Windows 11, 10, 8, 7 и XP

Доступен пользователям без опыта. Интерфейс программы интуитивно понятен и не требует специального обучения или продвинутых навыков. Например, создать фото дизайна небольшой спальни может любой пользователь, так как все инструменты удобно расположены и понятны с первого теста.

Шаблоны и планировка. Для быстрого старта доступна коллекция типовых планировок квартир. Есть отдельные подборки для 1, 2, 3 и 4-комнатных квартир. Каждый вариант можно отредактировать — добавлять, перемещать или удалять стены, указывать параметры толщины и высоты. Программа работает с индивидуальными чертежами, также пользователю доступно рисовать макеты с нуля.

планировки квартир

Режимы 2D и 3D. Проект доступен как в двухмерном, так и в трехмерном виде. Дополнительно есть просмотр помещения изнутри. Это позволяет сразу оценивать масштабные и детальные изменения в макете и свободно перемещаться по готовому интерьеру в режиме виртуального визита.

режим просмотра квартиры

Обширная библиотека объектов. В каталоге программы 750 моделей мебели и более 1200 материалов для отделки для создания стильного дизайна. Вся техника и гарнитуры удобно распределены по группам-комнатам, также в рабочем окне есть строчка с ключевыми словами, упрощающими поиск нужной модели. В конструктор можно загружать собственные текстуры и изображения, чтобы сделать дизайн уникальным.

встроенный каталог предметов мебели

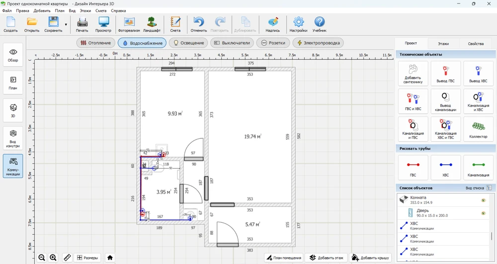
Работа с коммуникациями. Одно из преимуществ программы — возможность разместить розетки, выключатели, отопление и свет. В каталоге есть несколько разновидностей радиаторов и выключатели. Можно указать точку вывода для ГВС, ХВС, канализации, нарисовать слаботочные, силовые розетки на потолке, стене, на границе с полом.

схема водоснабжения в квартире

Расчет стоимости материалов и работ. Не выходя из конструктора можно составить предварительную и окончательную смету. Для этого нужно выбрать конкретную комнату либо все помещения, указать виды коммуникаций. В сформированной таблице пользователь в каждой новой строчке добавляет вид услуги и заполняет основные окошки — количество, стоимость, примечания. Программа автоматически рассчитывает смету будущего ремонта.

Экспорт результата. Готовый документ можно сохранить в виде изображения, PDF-файла или даже фотореалистичной визуализации. Для имитации снимка следует выбрать ориентацию листа, установить технические и световые параметры.

дизайн маленькой спальни в современном стиле

Скачать бесплатно Для Windows 11, 10, 8, 7 и XP

Выбираем стиль дизайна маленькой спальни

Рассказываем про удачные варианты оформления дизайна маленькой спальни в современном стиле, которые помогут уйти от ощущения тесноты и создать уютную и комфортную атмосферу для отдыха.

Спальня-оазис

Один из вариантов современного дизайна с природными нотками. Биофильный стиль стремится интегрировать природу в пространство, уходя от стерильной искусственности. Его цель — не просто добавить растения, а создать глубокую связь с естественной средой через свет, материалы и декор. Такое окружение позволяет расслабиться, снизить уровень стресса и повысить продуктивность.

Ключевые черты биофильного стиля:

  • природные акценты, например, вид из окна на лес;
  • естественные материалы — дерево, камень, лен;
  • важность фактуры и тактильности;
  • обилие дневного света;
  • свежий воздух;
  • отказ от стерильности.
дизайн спальни с видом на лес
уютная спальня за городом
спальня с обилием растений
комната с зеленой стеной
светлая спальня с подвесными растениями
уютная спальня с цветами
спальня в светлых оттенках с растениями

Flat Planner — бесплатный онлайн-планировщик для оформления интерьера, который позволяет создавать схемы как стандартных, так и просторных помещений любых форм. С помощью встроенного каталога мебели, сантехники и предметов декора можно сделать экспресс-расстановку для любой комнаты в квартире. Сервис отличается простым интерфейсом, что делает планировку доступной даже для новичков. Готовый проект можно сохранить в форматах PNG, SVG или PDF.

«Мягкий» минимализм

Мягкий минимализм создает спокойные и уютные пространства, лишенные аскетизма классического варианта. В его основе лежит светлая отделка, а мебель отличается простыми, но обтекаемыми силуэтами без резких линий и лишнего декора. Пространство остается функциональным и дышащим, наполненным атмосферой безмятежности, тепла.

Характеристики «мягкого» минимализма:

  • светлая отделка стен, пола, потолка;
  • текстуры вместо декора — дерево, лен, камень, гладкая штукатурка;
  • округлые и обтекаемые формы мебели;
  • функциональный интерьер — каждый предмет в пространстве полезен и уместен, отсутствует хаотичное хранение;
  • спокойная цветовая палитра.
спальня в минимализме
дизайн спальни в светлых тонах
маленькая спальня в экологичном минимализме
спальня с встроенным шкафом
минималистичная комната
спальня в светлых оттенках в минималистичном стиле
спальня с настенным светильником над кроватью

Техно-витальность

К трендам дизайна интерьера 2026 года относится направление «техно-витальность». Оно представляет динамичный синтез индустриальной эстетики стиля техно и жизненной энергии. Стиль создает атмосферу, где современные технологии и урбанистические материалы сочетаются с яркими акцентами и ощущением движения. Такое направление идеально подходит для креативных личностей, которые ценят инновации и придерживаются активного образа жизни. Дизайн интерьера в подобном стиле не выглядит как стерильное техногенное пространство: оно соотносится с дышащей и энергичной средой.

Техно-витальность включает:

  • индустриальную отделку — бетон, металл, стекло и пластик в необработанном виде;
  • футуристическое освещение;
  • четкие геометрические формы и линии;
  • яркие цветовые акценты на нейтральном фоне;
  • интеграцию современной техники в качестве элемента декора — техника не скрывается, а становится полноправной частью интерьера.
спальня в индастриал стиле
комната с бетонными стенами и полами
спальня в техно-витальном стиле
комната в серых цветах
спальня с акцентной кроваью
спальня с красной кирпичной стеной
спальня с бетонными стенами и зеленой кроватью

Радикальная экологичность

Это не просто использование натуральных материалов, а целая философия минимального негативного воздействия на планету. Он проявляется в отказе от новой мебели в пользу восстановленной и в создании предметов из переработанных ресурсов.

При выборе «радикальной экологичности» придерживайтесь:

  • принципа долговечного потребления;
  • переработанных материалов;
  • экологичности отделки;
  • натуральных тканей в обивке и текстиле;
  • локальных производителей.
комната в эко стиле
деревянная мебель
спальня с плетеным подвесным гамаком
спальня с деревянной ширмой
комната с деревянной мебелью
эко спальня с деревянной кроватью
белая спальня в минималистичном стиле с деревянной кроватью

Необарокко

Спальный уголок в стиле необарокко — это современное прочтение дворцовой эстетики, где главный акцент сделан на глубоких, насыщенных цветах стен и изящной лепнине. Мебель с вычурными изогнутыми ножками и текстиль из бархата или парчи придают ощущение роскоши, но без избыточного декора. Многоуровневое освещение с бронзовыми или латунными светильниками создает сложный световой сценарий и подчеркивает глубину пространства.

Основные характеристики необарокко:

  • глубокий цвет стен — темные, сложные тона, например, цвет увядшей розы, винный, бутылочно-зеленый или оттенок грозового неба;
  • лепнина, слитая со стеной — молдинги на стенах и потолке в цвет стен для объема;
  • богатые ткани — атлас, парча и бархат благородных, глубоких расцветок;
  • вычурная мебель — диваны, кровати, а также кресла и комоды с изогнутыми ножками, резьбой и мягкими силуэтами;
  • многоуровневое освещение — основной потолочный свет, точечный светильник нижнего уровня и декоративная подсветка.
комната в стиле необарокко
спальня в стиле необарокко в светлых оттенках
комната с бордовой кроватью
дизайн спальни в стиле необарокко
спальня в темных тонах
светлая спальня с розовой кроватью
спальня в стиле необарокко с зеленой кроватью

Цветовая гамма

Для современного дизайна маленькой спальни подойдут следующие тона.

Светлые — расширяют пространство:

  • «холодный» белый;
  • элегантный светло-серый;
  • «теплый» бежевый или слоновая кость.

Приглушенные пастельные — добавляют цвета, не нагружая пространства:

  • «свежий» мятный;
  • успокаивающий нежно-голубой;
  • нежный пыльно-розовый.

Темные акценты для придания глубины:

  • «дорогой» графитовый;
  • камерный темно-синий/зеленый.
комната в зеленых оттенках
дизайн комнаты в белом цвете
комната в бежевых оттенках
спальня в розовых оттенках
комната в мятном оттенке
бежевая спальня
комната с мятными стенами

Мебель

Планируя дизайн спальни в маленькой комнате, особенно в квадратных помещениях, сделайте ставку на вертикальные формы. Вместо широкого гардероба используйте систему узких шкафов — они органично встают вплотную к стенам и хорошо встраиваются в одиночный угол. Выбирайте модели с раздвижными дверями, чтобы сэкономить место при открывании гардероба.

Кровать с ящиками для белья компенсирует нехватку мест хранения, а полки или открытые ниши у изголовья заменяют прикроватные тумбы, экономя дефицитные сантиметры площади. Мебель на ножках способна пропускать свет и делать пространство более невесомым.

Сегодня популярен вариант спального гарнитура — у крупных производителей есть модели как для больших помещений, так и для небольшой квадратуры. Преимущество этого варианта — все предметы выполнены в одном стиле, покупателю не нужно самостоятельно подбирать позиции и сочетать их между собой.

спальня с стеллажами по бокам
система хранения в спальне
тумба для хранения
встроенная кровать
кровать с встроенным хранением
спальня с встроенной системой хранения у кровати
светлая спальня с открытым стеллажом

Освещение и декор

Правильное освещение преображает дизайн маленькой спальной комнаты. Следует отказаться от одной громоздкой люстры — она создает резкие тени и визуально «съедает» подпотолочное пространство. Вместо этого лучше использовать многоточечный свет — светодиодную ленту по периметру потолка для мягкой заливки, компактные лампы с теплым светом над тумбой. Это создаст комфортную спальную атмосферу и позволит зонировать пространство комнаты — например, отделит спальное место от уголка для чтения.

Используйте декор, чтобы оформить лаконичные акценты. Картина в тонких рамах или зеркало на стене добавят воздушности, а плед и пару декоративных подушек из фактурной ткани создадут комфортную спальную обстановку. Невысокое комнатное растение на подоконнике привнесет свежести, а неглубокая полка-«лесенка» из светлого дерева поможет расставить мелочи: книги, свечи, небольшие фоторамки.

полка с декором
прикроватное освещение
подсветка кровати
разноуровневое освещение спальни
торшер в спальне
настенной освещение и прикроватное
стильное многоуровневое освещение

Итоги

Для того чтобы преобразить компактную площадь в красивое спальное место не обязательно обращаться к дизайнерам интерьеров. Нарисовать схему или объемный макет, подобрать цветовую гамму для отделки и меблировку может каждый пользователь при помощи программы Дизайн Интерьера 3D.

Оценить разные варианты расстановки поможет бесплатный онлайн-планировщик спальни Flat Planner. В случае с небольшой квадратурой старайтесь выбирать компактную и функциональную мебель, используйте несколько источников света и не бойтесь экспериментировать со стилями. А для творческого вдохновения воспользуйтесь нашей подборкой фото дизайна интерьера маленькой спальни.

Комментарии (0)
Оставить комментарий:
Введено символов: 0 из 1000
Антиспам:
=
Прокомментируйте первым!
Оцените возможности многофункциональной программы для дизайна интерьера
Скачать бесплатно Для Windows 11, 10, 8, 7 и XP